Disponibilité : Nous consulter
Superficie

350 m²

150 € / m² / an

Votre interlocuteur

Jean-Baptiste BAPPEL

Référence de ce bien 2028238-0L
  1. Accueil
  2. Nos annonces immobilières
  3. Location
  4. Locaux commerciaux
  5. Fontenay tresigny (77610)
  6. Locaux commerciaux à louer de 350 m²

Partager sur :

location Locaux commerciaux FONTENAY TRESIGNY (77610) 350 m²

Désignation

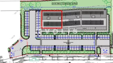
Situé à FONTENAY TRESIGNY, au sein du Parc Briard en pleine expansion, nous vous proposons à la location, BEFA, une cellule commerciale d'une surface totale de 350m². Contactez nous pour plus d'information.

Prestations

  • Surface RDC : 350 m²

Surfaces & descriptif

type de bien étage surface loyer* charges* disponibilité
Locaux commerciaux RDC 350 m² 150 € NC Nous consulter

* : exprimé en € /m²/an HT HC

Conditions

  • Type de bail : Bail commercial 3-6-9 ans

Pour accéder à plus de détails sur nos honoraires, consulter notre barème.

Accès

    DPE & GES

    Consommation énergétique :

    Diagnostic en cours de réalisation

    Gaz à effet de serre :

    Diagnostic en cours de réalisation

    Les informations sur les risques auxquels ce bien est exposé sont disponibles sur le site Géorisques : www.georisques.gouv.fr.

    Consultez les offres similaires

    Nous contacter

    Nous contacter Vous avez un projet immobilier ?

    Nous envoyer un email 01 59 30 27 99