Disponibilité : 15 mois après accord
Superficie

2 015 m²

136 € / m² / an

Votre interlocuteur

Sven LEFORESTIER

Référence de ce bien 1435606-0L
  1. Accueil
  2. Nos annonces immobilières
  3. Location
  4. Entrepôts / activités
  5. Chilly mazarin (91380)
  6. Entrepôts / activités à louer de 2015 m²

Partager sur :

location Entrepôts / activités CHILLY MAZARIN (91380) 2 015 m²

Désignation

A proximité immédiate de l'autoroute A6 et de la nationale 20, au sein du parc d'activité de la vigne aux loups à Chilly Mazarin, EVOLIS vous propose un bâtiment à construire développant une surface de 1908m² à la location sur un terrain de 7565m². Ce bâtiment certifié RE 2020 pour les bureaux et RT 2012 pour la partie activité offrira un cadre de travail agréable pour toute société industrielle souhaitant s'implanter sur le secteur.

Prestations

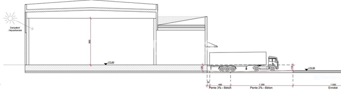
  • . 2.760 m² de voiries : 10 PL/jour et 200 VUL/jour.
  • . Bardage double peau
  • . 1 quai poids lourds H 1,2m avec niveleur.
  • . 2 quais de plein pied pour véhicules utilitaires.
  • . 3 bornes de recharge électrique.
  • . Dalle quartzée entrepôt 3T/m².
  • . VMC double flux, pompe à chaleur, double vitrage.
  • . Panneaux photovoltaïques en toiture prod < 100 KwC.
  • . Autoconsommation d'électricité au bénéfice de l'exploitant.
  • . Bassin de rétention des EP enterré.
  • . Tarif jaune 250 KVA
  • . Pas d'activité soumise à ICPE ni d'ERP prévus aux Travaux
  • Immeuble indépendant
  • Surface RDC : 1839,05 m²

Surface & descriptif

type de bien étage surface loyer* charges* disponibilité

Conditions

  • Type de bail : Bail commercial 3-6-9 ans
  • Dépôt de garantie : 3 mois de loyer HT HC
  • Paiement des loyers : Trimestriel d'avance
  • Indexation annuelle : ILAT Indice des Loyers des Activités Tertiaires
  • Régime fiscal : T.V.A.
  • Honoraires : 15% HT du loyer annuel HT HC à la charge du preneur

Pour accéder à plus de détails sur nos honoraires, consulter notre barème.

Accès

  • Tram Chilly-Mazarin (T12)
  • SNCF Chilly-Mazarin (Gare SNCF)
  • Autoroute A6, A126, A10
  • Route N20
  • Bus 4501, 9115, 9118
  • RER C Longjumeau

DPE & GES

Consommation énergétique :

Diagnostic en cours de réalisation

Gaz à effet de serre :

Diagnostic en cours de réalisation

Les informations sur les risques auxquels ce bien est exposé sont disponibles sur le site Géorisques : www.georisques.gouv.fr.

Consultez les offres similaires

Nous contacter

Nous contacter Vous avez un projet immobilier ?

Nous envoyer un email 01 59 30 27 99